Деревянный загородный дом для большой семьи

При заказе архитектурного проекта клиенты озвучили два основных пожелания: хотим дом в американском стиле для большой семьи, просторный, с террасой с видом на сад.
Дом в американском стиле идеально подходит для семей, ведущих активный образ жизни, особенно для семейных пар с детьми. В итоге на чертежах был «построен» просторный двухэтажный коттедж, с крышей сложной формы и большим количеством окон.

Заказчики проекта

Семья с 4 детьми

Площадь объекта

365 м.кв.

Срок выполнения

4 месяцев

В проекте загородного дома удачно сочетается удобство, внешняя привлекательность и функциональность строения, где жилое пространство используется с максимальной эффективностью.

Дом выполнен из клееного бруса 240х240мм, а цоколь – из клинкерного кирпича. Клинкерный кирпич – один из наиболее долговечных материалов, способный сохранять свои характеристики в течение нескольких десятилетий. Плюс такой кирпич создаёт более органичный внешний вид постройки.

Интересная архитектурная деталь – небольшая крытая галерея, ведущая от парковки ко входу в дом. В дом можно попасть и через центральный вход.

Планировка традиционного «американского дома» должна быть удобна для всех членов семьи. Поскольку семья состоит из шести человек (папа, мама, близняшки, сын и дочь), то каждому члену семьи была спроектирована отдельная комната. Родительская спальня находится на максимально возможном удалении от детских (в таких мелочах проявляется право на независимость и личную жизнь). К спальне примыкает отдельная ванная комната.

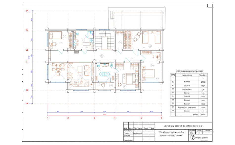
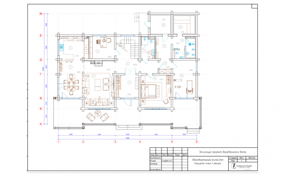
Поскольку дом двухэтажный (а именно такой тип встречается чаще всего в американской архитектуре), то приватная зона располагается на втором этаже (четыре спальни, два санузла, гардеробная и балкон), а на первом – кухня, столовая, холл и гостиная, гостевая. Мы также добавили небольшую сауну и тренажерный зал.

С первого этажа выход ведет на комфортную крытую террасу, крыша которой защищает от дождя и палящего солнца. На большую террасу перед домом можно попасть с главного входа в дом или из столовой и тренажёрного зала. Ее специально сделали на всю ширину дома, чтобы можно было любоваться растениями, ландшафтом и видом на реку. Поэтому дом и расположили в глубине участка, откуда открывается прекрасный вид.

Интересной деталью стал второй свет, который спроектирован в гостиной. Как правило, общая комната – помещение просторное. И освещение в такой гостиной должно быть тщательно продуманным. Поэтому мы руководствовались важным правилом: помимо общего света в гостиной под каждую задачу продумали отдельный островок освещения.

Этот проект двухэтажно дома получился продуманным, функциональным и эстетичным. Когда красиво и удобно – тогда хорошо!

В проекте загородного дома удачно сочетается удобство, внешняя привлекательность и функциональность строения, где жилое пространство используется с максимальной эффективностью. <br><br>
Дом выполнен из клееного бруса 240х240мм, а цоколь – из клинкерного кирпича. Клинкерный кирпич – один из наиболее долговечных материалов, способный сохранять свои характеристики в течение нескольких десятилетий. Плюс такой кирпич создаёт более органичный внешний вид постройки. <br><br>

Интересная архитектурная деталь – небольшая крытая галерея, ведущая от парковки ко входу в дом. В дом можно попасть и через центральный вход. <br><br>

Планировка традиционного «американского дома» должна быть удобна для всех членов семьи. Поскольку семья состоит из шести человек (папа, мама, близняшки, сын и дочь), то каждому члену семьи была спроектирована отдельная комната. Родительская спальня находится на максимально возможном удалении от детских (в таких мелочах проявляется право на независимость и личную жизнь). К спальне примыкает отдельная ванная комната. <br><br>
Поскольку дом двухэтажный (а именно такой тип встречается чаще всего в американской архитектуре), то приватная зона располагается на втором этаже (четыре спальни, два санузла, гардеробная и балкон), а на первом – кухня, столовая, холл и гостиная, гостевая. Мы также добавили небольшую сауну и тренажерный зал. <br><br>
С первого этажа выход ведет на комфортную крытую террасу, крыша которой защищает от дождя и палящего солнца. На большую террасу перед домом можно попасть с главного входа в дом или из столовой и тренажёрного зала. Ее специально сделали на всю ширину дома, чтобы можно было любоваться растениями, ландшафтом и видом на реку. Поэтому дом и расположили в глубине участка, откуда открывается прекрасный вид. <br><br>

Интересной деталью стал второй свет, который спроектирован в гостиной. Как правило, общая комната – помещение просторное. И освещение в такой гостиной должно быть тщательно продуманным. Поэтому мы руководствовались важным правилом: помимо общего света в гостиной под каждую задачу продумали отдельный островок освещения. <br><br>

Этот проект двухэтажно дома получился продуманным, функциональным и эстетичным. Когда красиво и удобно – тогда хорошо!

Больше фото проекта

Деревянный загородный дом для большой семьи
Деревянный загородный дом для большой семьи
Деревянный загородный дом для большой семьи
Деревянный загородный дом для большой семьи
Деревянный загородный дом для большой семьи
Деревянный загородный дом для большой семьи
Деревянный загородный дом для большой семьи
Деревянный загородный дом для большой семьи

Не откладывайте свою мечту на завтра!
Получите детальный проект квартиры или дома мечты!

Оставьте свои контактные данные, чтобы мы могли с вами связаться и обсудить ваш проект.

Часто задаваемые вопросы

Конечно! На стадии разработки проекта можно вносить изменения. Если возникло желание внести изменения в готовый проект после согласования и сдачи, тогда составляется доп.соглашение о дополнительной оплате и о характере корректировок.

Дизайн проект включает в себя:
План обмера помещения (существующая планировка помещения с указанием площади).
Утвержденный концепт-план (планировочное решение с разделением на функциональные зоны с расстановкой мебели и сантехнического оборудования).
Подбор материалов (отделочные материалы, мебель, сантехника, светильники, текстиль и многое другое).
Ведомость отделочных материалов (площади материалов, типы материалов).
План демонтажа конструкций.
План монтажа конструкций из ГКЛ (с дополнительными схемами конструкций на новых листах).
План-схема дверных проемов (со спецификацией дверей и витражей).
План отопительных приборов.
План сантехнического оборудования (подбор сантехники и развертка по стенам с привязками).
План покрытий пола с указанием площади.
План уровней потолка.
План освещения (спецификация светильников).
План розеток с привязками.
Узлы сложных и дизайнерских конструктивных решений.
Развертки по стенам. Раскладка плитки.
Подробные чертежи сложных узлов и деталей.
Чертежи по кухне и оборудованию.
Чертежи индивидуальных изделий под заказ.
Визуализации интерьера.

Цена на дизайн-проект всегда зависит от его наполнения, т.е. от поставленных задач, их сложности, сроков, этапов реализации и площади помещения.
Работа может включать создание только эскизного проекта, рабочего проекта или полного проекта. Наличие услуги авторского сопровождения дизайнера также влияет на итоговую стоимость проекта.

Чертежи нужны, прежде всего, строителям. Чертежная документация пошагово отражает, как нужно проводить ремонтные работы на конкретном объекте. Чтобы не было дорогостоящих и долгих переделок, исполнителям надо дать четкую «инструкцию ремонта».
Чертежи – это помощники в коммуникации между дизайнером и строительной бригадой. С помощью комплекта чертежей строители и отделочники выполнят все работы именно так, как было спроектировано.

Стоимость дизайн-проект всегда зависит от его наполнения (площади помещения, поставленных задач, их сложности, этапов и сроков реализации).
Дизайн-проект может быть только эскизный или дополнен 3D-моделированием. Комплект чертежей может быть базовым или полным. На итоговую стоимость влияет наличие дополнительных услуг: авторского сопровождения, комплекция, декорирования объектаи др.

Удобство и функционал – одно из основных требований, которое я ставлю перед собой как дизайнером. Поэтому я всегда определяю все действия, которые будут происходить в помещении, не забывая про ежедневные рутины. Это та самая база, без которой дизайн может оказаться неудачным. Только так можно сделать помещение многофункциональным и удобным.
Четкий алгоритм работы всегда позволяет мне найти именно то планировочное решение, которое будет функциональным и эргономичным, удобным и лаконичным.

Да. Если у вас возникло желание внести изменения в готовый проект после его согласования и сдачи, тогда составляется доп.соглашение о дополнительной оплате.
Вы также можете решить расширить пакет чертежной документации, выбрать услугу авторского надзора или заказать разработку ландшафтного оформления. Это также повлияет на итоговую оплату работы дизайнера.

При проведении ремонтных работ нужно заключать договор, чтобы в случае ненадлежащего исполнения и порчи материалов нарушитель нес ответственность, а у пострадавшей стороны была возможность предъявить требования. Я считаю, что строители должны с вами согласовать, как будет возмещен ущерб. Иногда они сами покупают тот материал, который испортили.
Чтобы такого не произошло, выбирайте проверенных строителей или по рекомендации.

Остались вопросы?

Оставьте заявку и наш менеджер ответит вам в ближайшее время

Вверх