Дизайн дома

Создание дома мечты с нуля – это волнующее путешествие, наполненное бесконечными возможностями и безграничным творчеством. Я понимаю, что проектирование дома от начала до конца – это не просто эстетика; это искусство, требующее тщательной подготовки и продуманного планирования. Мы отправляемся в это захватывающее приключение, вооружившись четко определенной дорожной картой, гарантируя, что каждый наш шаг приведет к великолепному результату, который оставит вас в полном восторге. Приготовьтесь к впечатляющему опыту, когда мы воплотим ваше видение в реальность, которая превзойдет все ожидания!

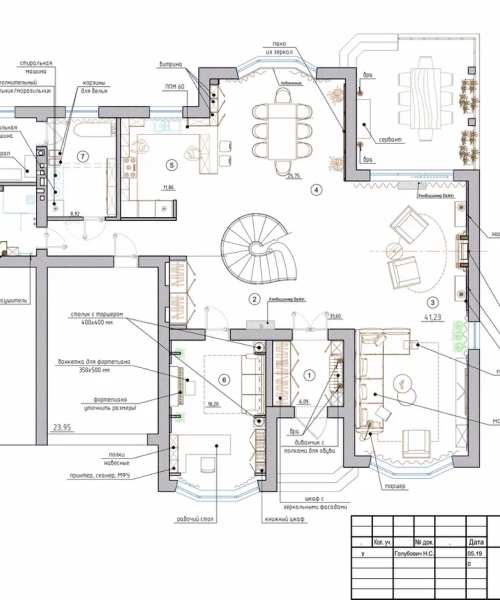
Этапы дизайн проекта

Изучение потребностей клиента

Прежде чем приступить к проектированию дома «под ключ», мы тщательно изучаем ваши потребности: функциональные требования к помещению, предпочтения в стиле дизайна, бюджет и сроки сдачи.

Изучение потребностей клиента

Создание проекта

Изучив ваши потребности, архитектор-дизайнер Наталья Голубович приступает к созданию проекта для вашего частного дома.
Это включает в себя планирование расположения помещений, разработку архитектурных чертежей, выбор материалов, дверей и окон, а также включение конструктивных элементов.
Этот этап знаменует начало самого увлекательного процесса создания авторского дизайна интерьера для вашего частного дома.

Создание проекта

Разработка дизайн-концепции

На этом этапе определяется концепция дизайна вашего частного дома, мы работаем над каждой комнатой и ищем интересные интерьерные решения. Концепция включает в себя планировочные решения, цветовые схемы, примеры материалов, расстановку мебели, освещение, декор и многое другое для дизайна интерьера вашего частного дома.

Разработка дизайн-концепции

Создание макетов и эскизов

Создание макетов и эскизов – важный этап дизайн-проекта. Это позволяет визуализировать, как будут выглядеть комнаты в вашем частном доме после завершения строительства, их масштаб и расположение. Эскизы и макеты рисуются вручную или с помощью компьютерных программ. С помощью 3D-технологии Наталья Голубович демонстрирует задуманную дизайнерскую концепцию, включая элементы интерьера и планировочные решения. Это облегчает понимание и визуализацию предполагаемого интерьера частного дома.

Создание макетов и эскизов

Реализация проекта

После утверждения проекта и дизайнерской концепции начинается этап реализации вашего частного дома. Этот этап включает в себя выбор материалов, установку мебели, регулировку освещения и электропроводки, покраску стен и потолков, а также другие работы, связанные с отделкой и завершающими штрихами вашего частного дома.

Реализация проекта

Завершение работ

После того, как дизайн-проект вашего частного дома разработан и утвержден, начинается самый захватывающий этап – реализация. Схемы и планировки воплощаются в жизнь и превращают ваш частный дом в интерьер мечты! На данном этапе важно, чтобы дизайн соответствовал вашим требованиям и ожиданиям. Завершение проекта, когда ваш частный дом полностью готов к заселению – это трогательный момент. Нам доставляет огромное удовольствие видеть удовлетворение и счастье в ваших глазах, когда вы переезжаете в дом своей мечты. Но проект на этом не заканчивается – он продолжает развиваться, добавляя новые детали, декор, памятные вещи и семейные реликвии.
В конце проекта, накануне переезда, нам важно красиво завершить работу, проведя стильную фотосессию, чтобы запечатлеть результаты дизайна вашего частного дома.

Не забывайте, что компания архитектора-дизайнера Натальи Голубович – идеальное место для удовлетворения всех ваших потребностей в архитектуре и дизайне интерьера. Независимо от того, ищете ли вы дизайн квартиры, дизайн участка, ландшафтный дизайн дома, дизайн загородного дома или дизайн-проект под ключ, Наталья Голубович увлечена созданием пространств, которые вдохновляют и восхищают. Свяжитесь с нами сегодня, чтобы отправиться в путешествие по преобразующему дизайну, который улучшит ваш образ жизни.

Завершение работ

Не откладывайте свою мечту на завтра!
Получите детальный проект квартиры или дома мечты!

Оставьте свои контактные данные, чтобы мы могли с вами связаться и обсудить ваш проект.

Часто задаваемые вопросы

Конечно! На стадии разработки проекта можно вносить изменения. Если возникло желание внести изменения в готовый проект после согласования и сдачи, тогда составляется доп.соглашение о дополнительной оплате и о характере корректировок.

Дизайн проект включает в себя:
План обмера помещения (существующая планировка помещения с указанием площади).
Утвержденный концепт-план (планировочное решение с разделением на функциональные зоны с расстановкой мебели и сантехнического оборудования).
Подбор материалов (отделочные материалы, мебель, сантехника, светильники, текстиль и многое другое).
Ведомость отделочных материалов (площади материалов, типы материалов).
План демонтажа конструкций.
План монтажа конструкций из ГКЛ (с дополнительными схемами конструкций на новых листах).
План-схема дверных проемов (со спецификацией дверей и витражей).
План отопительных приборов.
План сантехнического оборудования (подбор сантехники и развертка по стенам с привязками).
План покрытий пола с указанием площади.
План уровней потолка.
План освещения (спецификация светильников).
План розеток с привязками.
Узлы сложных и дизайнерских конструктивных решений.
Развертки по стенам. Раскладка плитки.
Подробные чертежи сложных узлов и деталей.
Чертежи по кухне и оборудованию.
Чертежи индивидуальных изделий под заказ.
Визуализации интерьера.

Цена на дизайн-проект всегда зависит от его наполнения, т.е. от поставленных задач, их сложности, сроков, этапов реализации и площади помещения.
Работа может включать создание только эскизного проекта, рабочего проекта или полного проекта. Наличие услуги авторского сопровождения дизайнера также влияет на итоговую стоимость проекта.

Чертежи нужны, прежде всего, строителям. Чертежная документация пошагово отражает, как нужно проводить ремонтные работы на конкретном объекте. Чтобы не было дорогостоящих и долгих переделок, исполнителям надо дать четкую «инструкцию ремонта».
Чертежи – это помощники в коммуникации между дизайнером и строительной бригадой. С помощью комплекта чертежей строители и отделочники выполнят все работы именно так, как было спроектировано.

Стоимость дизайн-проект всегда зависит от его наполнения (площади помещения, поставленных задач, их сложности, этапов и сроков реализации).
Дизайн-проект может быть только эскизный или дополнен 3D-моделированием. Комплект чертежей может быть базовым или полным. На итоговую стоимость влияет наличие дополнительных услуг: авторского сопровождения, комплекция, декорирования объектаи др.

Удобство и функционал – одно из основных требований, которое я ставлю перед собой как дизайнером. Поэтому я всегда определяю все действия, которые будут происходить в помещении, не забывая про ежедневные рутины. Это та самая база, без которой дизайн может оказаться неудачным. Только так можно сделать помещение многофункциональным и удобным.
Четкий алгоритм работы всегда позволяет мне найти именно то планировочное решение, которое будет функциональным и эргономичным, удобным и лаконичным.

Да. Если у вас возникло желание внести изменения в готовый проект после его согласования и сдачи, тогда составляется доп.соглашение о дополнительной оплате.
Вы также можете решить расширить пакет чертежной документации, выбрать услугу авторского надзора или заказать разработку ландшафтного оформления. Это также повлияет на итоговую оплату работы дизайнера.

При проведении ремонтных работ нужно заключать договор, чтобы в случае ненадлежащего исполнения и порчи материалов нарушитель нес ответственность, а у пострадавшей стороны была возможность предъявить требования. Я считаю, что строители должны с вами согласовать, как будет возмещен ущерб. Иногда они сами покупают тот материал, который испортили.
Чтобы такого не произошло, выбирайте проверенных строителей или по рекомендации.

Остались вопросы?

Оставьте заявку и наш менеджер ответит вам в ближайшее время

Вверх