Интерьер двухэтажного загородного дома

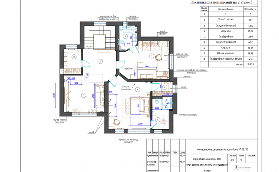
По желанию заказчиков мы создали современный интерьер. Легкость, свежесть и комфорт стали неотъемлемой частью проекта. На первом этаже разместили гостиную, кухню-столовую, гостевую комнату, два санузла и хозяйственные помещения. На втором – родительскую и детскую спальни, два санузла и две гардеробные.

Заказчики проекта

Семья с одним ребенком

Площадь объекта

260 кв. м.

Срок выполнения

7 месяцев

Одна из главных особенностей фешенебельной планировки – объединение 3 главных зон: кухни, столовой и гостиной. Данный дизайн-проект – не исключение. Мы стремились гармонично соединить все зоны воедино. Основными акцентными материалами были выбраны дерева, камень и металл, а цветами – белый, серебряный, серый и золотое дерево.

Дизайн-проект этого дома выделяется некоторыми редкими элементами. Например, в каждой спальне есть свой санузел и своя гардеробная комната, что очень удобно. Кухня-столовая – большая зона, где мы разместили не только кухонный гарнитур, но и сделали остров. Г-образная форма кухонного гарнитура позволяет на минимальной площади разместить максимум функционала. А на острове можно не только готовить, но и разместиться на комфортных барных стульях. Это очень удобно: во время готовки собеседник может присесть с бокалом вина и развлекать хозяйку разговорами. Удобство и комфорт – главная задача в создании интерьера.

К отдыху располагает и планировка гостиной: окна в пол, большой ТВ-экран, современная стереосистема, комфортные диваны, приятные глазу оттенки в отделке стен и пола. Изюминкой этого помещения стал объёмный круглый пуф-столик и камин позади дивана, облицованный камнем.

Поскольку глава семьи много работает по вечерам и не желает мешать домочадцам, была спроектирована и комната хозяина (кабинет + спальня). Это помещение также многофункционально, поскольку во время приезда гостей становится гостевой спальней. Комната оформлена в «брутальных» цветах: темно-серый, коричневый, бордо. Мужской характер помещения мы усилили за счет интересного приема в дизайне. У изголовья кровати разместили декоративные 3d-панели из МДФ, скрытые двери в санузел и гардеробную.

Хозяйственные помещения в дизайне интерьера уже не являются чем-то диковинным: топочная, постирочная, комната с душем-лапомойкой, гардеробная. Однако в этом проекте мы дополнили этот «хозяйственный минимум» второй гардеробной комнатой, в которой будут храниться сезонные вещи.

Этот проект убедительно демонстрирует: хороший дизайн дома всегда должен отвечать трем требованиям – быть стильным, уютным и функциональным.

Одна из главных особенностей фешенебельной планировки – объединение 3 главных зон: кухни, столовой и гостиной. Данный дизайн-проект – не исключение. Мы стремились гармонично соединить все зоны воедино. Основными акцентными материалами были выбраны дерева, камень и металл, а цветами – белый, серебряный, серый и золотое дерево.<br><br>

Дизайн-проект этого дома выделяется некоторыми редкими элементами. Например, в каждой спальне есть свой санузел и своя гардеробная комната, что очень удобно. Кухня-столовая – большая зона, где мы разместили не только кухонный гарнитур, но и сделали остров. Г-образная форма кухонного гарнитура позволяет на минимальной площади разместить максимум функционала. А на острове можно не только готовить, но и разместиться на комфортных барных стульях. Это очень удобно: во время готовки собеседник может присесть с бокалом вина и развлекать хозяйку разговорами. Удобство и комфорт – главная задача в создании интерьера. <br><br>

К отдыху располагает и планировка гостиной: окна в пол, большой ТВ-экран, современная стереосистема, комфортные диваны, приятные глазу оттенки в отделке стен и пола. Изюминкой этого помещения стал объёмный круглый пуф-столик и камин позади дивана, облицованный камнем. <br><br>

Поскольку глава семьи много работает по вечерам и не желает мешать домочадцам, была спроектирована и комната хозяина (кабинет + спальня). Это помещение также многофункционально, поскольку во время приезда гостей становится гостевой спальней. Комната оформлена в «брутальных» цветах: темно-серый, коричневый, бордо. Мужской характер помещения мы усилили за счет интересного приема в дизайне. У изголовья кровати разместили декоративные 3d-панели из МДФ, скрытые двери в санузел и гардеробную. <br><br>

Хозяйственные помещения в дизайне интерьера уже не являются чем-то диковинным: топочная, постирочная, комната с душем-лапомойкой, гардеробная. Однако в этом проекте мы дополнили этот «хозяйственный минимум» второй гардеробной комнатой, в которой будут храниться сезонные вещи. <br><br>

Этот проект убедительно демонстрирует: хороший дизайн дома всегда должен отвечать трем требованиям – быть стильным, уютным и функциональным.

Больше фото проекта

Интерьер двухэтажного загородного дома
Интерьер двухэтажного загородного дома
Интерьер двухэтажного загородного дома
Интерьер двухэтажного загородного дома
Интерьер двухэтажного загородного дома
Интерьер двухэтажного загородного дома
Интерьер двухэтажного загородного дома
Интерьер двухэтажного загородного дома
Интерьер двухэтажного загородного дома
Интерьер двухэтажного загородного дома
Интерьер двухэтажного загородного дома
Интерьер двухэтажного загородного дома
Интерьер двухэтажного загородного дома
Интерьер двухэтажного загородного дома
Интерьер двухэтажного загородного дома
Интерьер двухэтажного загородного дома
Интерьер двухэтажного загородного дома
Интерьер двухэтажного загородного дома
Интерьер двухэтажного загородного дома
Интерьер двухэтажного загородного дома
Интерьер двухэтажного загородного дома
Интерьер двухэтажного загородного дома
Интерьер двухэтажного загородного дома
Интерьер двухэтажного загородного дома
Интерьер двухэтажного загородного дома
Интерьер двухэтажного загородного дома
Интерьер двухэтажного загородного дома
Интерьер двухэтажного загородного дома
Интерьер двухэтажного загородного дома
Интерьер двухэтажного загородного дома
Интерьер двухэтажного загородного дома
Интерьер двухэтажного загородного дома
Интерьер двухэтажного загородного дома
Интерьер двухэтажного загородного дома
Интерьер двухэтажного загородного дома
Интерьер двухэтажного загородного дома
Интерьер двухэтажного загородного дома
Интерьер двухэтажного загородного дома
Интерьер двухэтажного загородного дома
Интерьер двухэтажного загородного дома

Не откладывайте свою мечту на завтра!
Получите детальный проект квартиры или дома мечты!

Оставьте свои контактные данные, чтобы мы могли с вами связаться и обсудить ваш проект.

Часто задаваемые вопросы

Конечно! На стадии разработки проекта можно вносить изменения. Если возникло желание внести изменения в готовый проект после согласования и сдачи, тогда составляется доп.соглашение о дополнительной оплате и о характере корректировок.

Дизайн проект включает в себя:
План обмера помещения (существующая планировка помещения с указанием площади).
Утвержденный концепт-план (планировочное решение с разделением на функциональные зоны с расстановкой мебели и сантехнического оборудования).
Подбор материалов (отделочные материалы, мебель, сантехника, светильники, текстиль и многое другое).
Ведомость отделочных материалов (площади материалов, типы материалов).
План демонтажа конструкций.
План монтажа конструкций из ГКЛ (с дополнительными схемами конструкций на новых листах).
План-схема дверных проемов (со спецификацией дверей и витражей).
План отопительных приборов.
План сантехнического оборудования (подбор сантехники и развертка по стенам с привязками).
План покрытий пола с указанием площади.
План уровней потолка.
План освещения (спецификация светильников).
План розеток с привязками.
Узлы сложных и дизайнерских конструктивных решений.
Развертки по стенам. Раскладка плитки.
Подробные чертежи сложных узлов и деталей.
Чертежи по кухне и оборудованию.
Чертежи индивидуальных изделий под заказ.
Визуализации интерьера.

Цена на дизайн-проект всегда зависит от его наполнения, т.е. от поставленных задач, их сложности, сроков, этапов реализации и площади помещения.
Работа может включать создание только эскизного проекта, рабочего проекта или полного проекта. Наличие услуги авторского сопровождения дизайнера также влияет на итоговую стоимость проекта.

Чертежи нужны, прежде всего, строителям. Чертежная документация пошагово отражает, как нужно проводить ремонтные работы на конкретном объекте. Чтобы не было дорогостоящих и долгих переделок, исполнителям надо дать четкую «инструкцию ремонта».
Чертежи – это помощники в коммуникации между дизайнером и строительной бригадой. С помощью комплекта чертежей строители и отделочники выполнят все работы именно так, как было спроектировано.

Стоимость дизайн-проект всегда зависит от его наполнения (площади помещения, поставленных задач, их сложности, этапов и сроков реализации).
Дизайн-проект может быть только эскизный или дополнен 3D-моделированием. Комплект чертежей может быть базовым или полным. На итоговую стоимость влияет наличие дополнительных услуг: авторского сопровождения, комплекция, декорирования объектаи др.

Удобство и функционал – одно из основных требований, которое я ставлю перед собой как дизайнером. Поэтому я всегда определяю все действия, которые будут происходить в помещении, не забывая про ежедневные рутины. Это та самая база, без которой дизайн может оказаться неудачным. Только так можно сделать помещение многофункциональным и удобным.
Четкий алгоритм работы всегда позволяет мне найти именно то планировочное решение, которое будет функциональным и эргономичным, удобным и лаконичным.

Да. Если у вас возникло желание внести изменения в готовый проект после его согласования и сдачи, тогда составляется доп.соглашение о дополнительной оплате.
Вы также можете решить расширить пакет чертежной документации, выбрать услугу авторского надзора или заказать разработку ландшафтного оформления. Это также повлияет на итоговую оплату работы дизайнера.

При проведении ремонтных работ нужно заключать договор, чтобы в случае ненадлежащего исполнения и порчи материалов нарушитель нес ответственность, а у пострадавшей стороны была возможность предъявить требования. Я считаю, что строители должны с вами согласовать, как будет возмещен ущерб. Иногда они сами покупают тот материал, который испортили.
Чтобы такого не произошло, выбирайте проверенных строителей или по рекомендации.

Остались вопросы?

Оставьте заявку и наш менеджер ответит вам в ближайшее время

Вверх