Проект однокомнатной квартиры в Санкт-Петербурге

Заказчица хотела, чтобы в дизайне интерьера прослеживалась тема тропиков, поэтому с радостью приняла мою идею сделать одну акцентную стену. Используя холодный зеленый цвет, добились визуального эффекта удаления стены. Этот прием помог расширить пространство довольно небольшой однокомнатной квартиры.

Заказчики проекта

Молодая девушка

Стиль

скандинавский

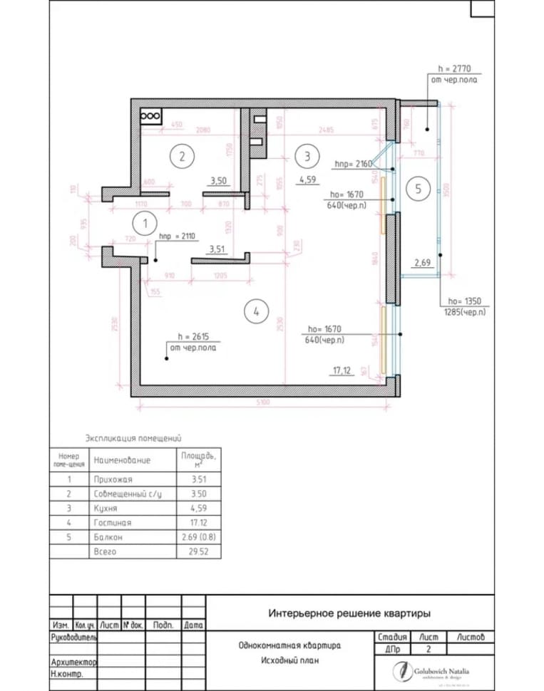
Площадь объекта

29,52 кв.м.

Срок выполнения

2 месяца

Я логично поделила дизайн интерьера квартиры на три зоны. Открытая зона включает прихожую и объединенное пространство кухни, столовой и гостиной. В приватной части квартиры находится спальня. В третьей –расположился санузел. В этих функциональных зонах разместили узкоспециализированные «островки». Так, на границе столовой и гостиной находится рабочее место, а в гостиной уголок релакса и чтения: раскладной диван, стеллаж для книг и стильный напольный торшер.
Небольшая ширина балкона (около 80 см) не позволила организовать там полноценную зону отдыха. Но незаметный шкаф и элегантный барный стул делают и это помещение полифункциональным.

Открытая планировка, большие симметричные окна и выбранная цветовая гамма придают интерьеру ощущение воздушности. Светлые цвета сочетаются с яркой стеной с пальмовыми цветами в гостиной и зеленой краской в зоне отдыха и создают эффект «акварельного» интерьера: где-то прохладного, где-то теплого, но везде ненавязчивого, прозрачного и свежего.
В данном интерьере сочетаются материалы разной фактуры: холодный блеск керамической плитки, теплая матовость окрашенных стен, яркие обои KT-Exclusive Palm spring.

Интерьер получился просторным, функциональным, современным. Я уверена, подобный вариант дизайн-проекта будет актуальным и для других городов. Черпайте вдохновение в моем портфолио и заказывайте дизайн интерьера в Минске.

Я логично поделила дизайн интерьера квартиры на три зоны. Открытая зона включает прихожую и объединенное пространство кухни, столовой и гостиной. В приватной части квартиры находится спальня. В третьей –расположился санузел. В этих функциональных зонах разместили узкоспециализированные «островки». Так, на границе столовой и гостиной находится рабочее место, а в гостиной уголок релакса и чтения: раскладной диван, стеллаж для книг и стильный напольный торшер.<br>
Небольшая ширина балкона (около 80 см) не позволила организовать там полноценную зону отдыха. Но незаметный шкаф и элегантный барный стул делают и это помещение полифункциональным. <br><br>

Открытая планировка, большие симметричные окна и выбранная цветовая гамма придают интерьеру ощущение воздушности. Светлые цвета сочетаются с яркой стеной с пальмовыми цветами в гостиной и зеленой краской в зоне отдыха и создают эффект «акварельного» интерьера: где-то прохладного, где-то теплого, но везде ненавязчивого, прозрачного и свежего. <br>
В данном интерьере сочетаются материалы разной фактуры: холодный блеск керамической плитки, теплая матовость окрашенных стен, яркие обои KT-Exclusive Palm spring. <br><br>

Интерьер получился просторным, функциональным, современным. Я уверена, подобный вариант дизайн-проекта будет актуальным и для других городов. Черпайте вдохновение в моем портфолио и заказывайте дизайн интерьера в Минске.

Больше фото проекта

Проект однокомнатной квартиры в Санкт-Петербурге
Проект однокомнатной квартиры в Санкт-Петербурге
Проект однокомнатной квартиры в Санкт-Петербурге
Проект однокомнатной квартиры в Санкт-Петербурге
Проект однокомнатной квартиры в Санкт-Петербурге
Проект однокомнатной квартиры в Санкт-Петербурге
Проект однокомнатной квартиры в Санкт-Петербурге
Проект однокомнатной квартиры в Санкт-Петербурге
Проект однокомнатной квартиры в Санкт-Петербурге
Проект однокомнатной квартиры в Санкт-Петербурге
Проект однокомнатной квартиры в Санкт-Петербурге
Проект однокомнатной квартиры в Санкт-Петербурге
Проект однокомнатной квартиры в Санкт-Петербурге
Проект однокомнатной квартиры в Санкт-Петербурге
Проект однокомнатной квартиры в Санкт-Петербурге

Не откладывайте свою мечту на завтра!
Получите детальный проект квартиры или дома мечты!

Оставьте свои контактные данные, чтобы мы могли с вами связаться и обсудить ваш проект.

Часто задаваемые вопросы

Конечно! На стадии разработки проекта можно вносить изменения. Если возникло желание внести изменения в готовый проект после согласования и сдачи, тогда составляется доп.соглашение о дополнительной оплате и о характере корректировок.

Дизайн проект включает в себя:
План обмера помещения (существующая планировка помещения с указанием площади).
Утвержденный концепт-план (планировочное решение с разделением на функциональные зоны с расстановкой мебели и сантехнического оборудования).
Подбор материалов (отделочные материалы, мебель, сантехника, светильники, текстиль и многое другое).
Ведомость отделочных материалов (площади материалов, типы материалов).
План демонтажа конструкций.
План монтажа конструкций из ГКЛ (с дополнительными схемами конструкций на новых листах).
План-схема дверных проемов (со спецификацией дверей и витражей).
План отопительных приборов.
План сантехнического оборудования (подбор сантехники и развертка по стенам с привязками).
План покрытий пола с указанием площади.
План уровней потолка.
План освещения (спецификация светильников).
План розеток с привязками.
Узлы сложных и дизайнерских конструктивных решений.
Развертки по стенам. Раскладка плитки.
Подробные чертежи сложных узлов и деталей.
Чертежи по кухне и оборудованию.
Чертежи индивидуальных изделий под заказ.
Визуализации интерьера.

Цена на дизайн-проект всегда зависит от его наполнения, т.е. от поставленных задач, их сложности, сроков, этапов реализации и площади помещения.
Работа может включать создание только эскизного проекта, рабочего проекта или полного проекта. Наличие услуги авторского сопровождения дизайнера также влияет на итоговую стоимость проекта.

Чертежи нужны, прежде всего, строителям. Чертежная документация пошагово отражает, как нужно проводить ремонтные работы на конкретном объекте. Чтобы не было дорогостоящих и долгих переделок, исполнителям надо дать четкую «инструкцию ремонта».
Чертежи – это помощники в коммуникации между дизайнером и строительной бригадой. С помощью комплекта чертежей строители и отделочники выполнят все работы именно так, как было спроектировано.

Стоимость дизайн-проект всегда зависит от его наполнения (площади помещения, поставленных задач, их сложности, этапов и сроков реализации).
Дизайн-проект может быть только эскизный или дополнен 3D-моделированием. Комплект чертежей может быть базовым или полным. На итоговую стоимость влияет наличие дополнительных услуг: авторского сопровождения, комплекция, декорирования объектаи др.

Удобство и функционал – одно из основных требований, которое я ставлю перед собой как дизайнером. Поэтому я всегда определяю все действия, которые будут происходить в помещении, не забывая про ежедневные рутины. Это та самая база, без которой дизайн может оказаться неудачным. Только так можно сделать помещение многофункциональным и удобным.
Четкий алгоритм работы всегда позволяет мне найти именно то планировочное решение, которое будет функциональным и эргономичным, удобным и лаконичным.

Да. Если у вас возникло желание внести изменения в готовый проект после его согласования и сдачи, тогда составляется доп.соглашение о дополнительной оплате.
Вы также можете решить расширить пакет чертежной документации, выбрать услугу авторского надзора или заказать разработку ландшафтного оформления. Это также повлияет на итоговую оплату работы дизайнера.

При проведении ремонтных работ нужно заключать договор, чтобы в случае ненадлежащего исполнения и порчи материалов нарушитель нес ответственность, а у пострадавшей стороны была возможность предъявить требования. Я считаю, что строители должны с вами согласовать, как будет возмещен ущерб. Иногда они сами покупают тот материал, который испортили.
Чтобы такого не произошло, выбирайте проверенных строителей или по рекомендации.

Остались вопросы?

Оставьте заявку и наш менеджер ответит вам в ближайшее время

Вверх