Светлый загородный дом
История этого проекта началась с покупки небольшого деревенского домика. После знакомства с объектом дизайнер приняла решение о некоторых изменениях: переделали крышу, немного подняли строение, чтобы потолок стал выше, сделали пристройку. В пристройке разместили прихожую, хозяйственное помещение, ванную комнату и кабинет.
Заказчики проекта
Семья
Стиль
современный
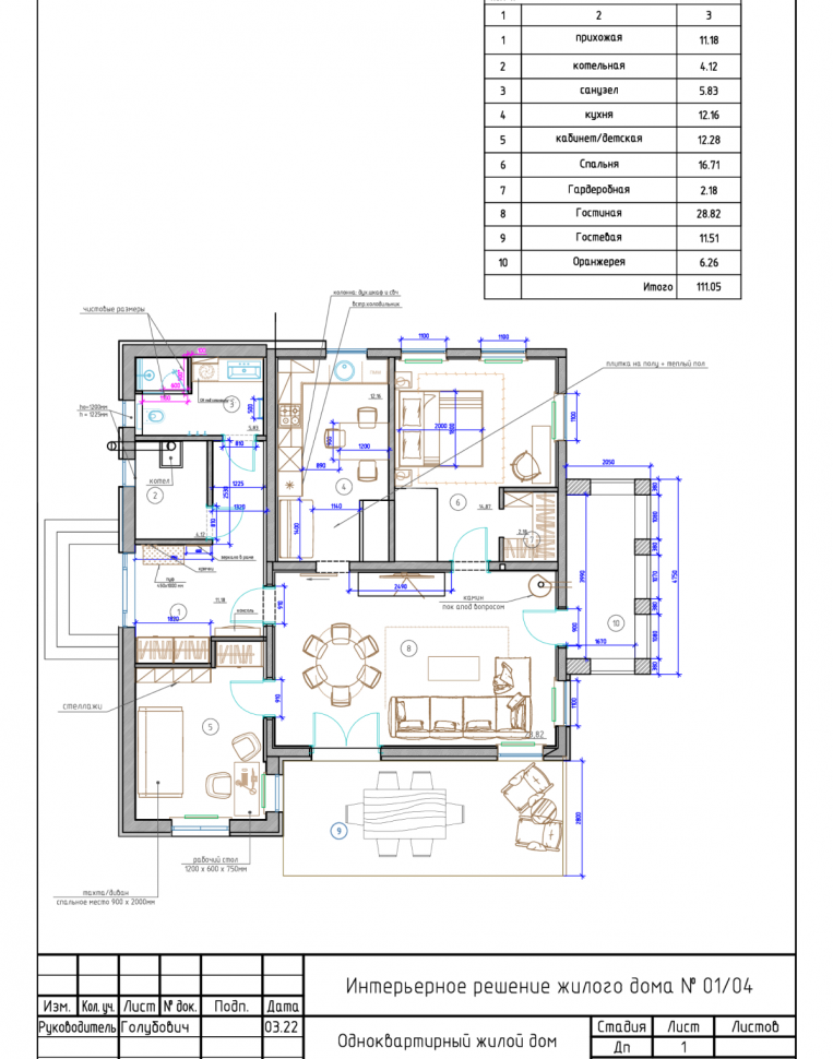
Площадь объекта
111 кв.м.
Срок выполнения
6 месяцев
Приняв во внимание все пожелания заказчиков, для загородного дома выбрали теплые солнечные цвета, натуральные материалы и природные оттенки, поэтому даже стены пропитаны атмосферой спокойствия. В интерьере преобладают пастельные, спокойные цвета: охра, бежевый, травяной. Подобное цветовое решение позволяет ощутить себя в деревенском доме из детства, в котором когда-то гостил у бабушки. Поэтому закономерно, что в проекте преобладают природные мотивы.
Так как брус, из которого возведен дом, не новый, его невозможно было отшлифовать, придав ему презентабельный внешний вид. Поэтому решили сымитировать дерево. Для этого стены в гостиной и спальне в некоторых местах зашили гипсокартоном, в других – вагонкой. Такой прием позволил оставить настроение и атмосферу загородного деревянного дома.
На потолке также комбинация гипсокартона и вагонки. Стены оклеены обоями с мелким принтом. Подобный рисунок также придает интерьеру теплую атмосферу деревенского жилища.
В наследство от прежних хозяев осталась печь. Ее также переделывали: полностью переложили, украсили плиткой-изразцами. Теперь в зоне кухни можно готовить настоящие блюда из печи, а в спальне – отдыхать и греться на уютной лежанке.
Интересная деталь в этом дизайн-проекте – фреска с природной тематикой в изголовье кровати в спальне. Светло-зеленый, золотой, нежно-желтый… Цветочные мотивы фрески созвучны круглой оригинальной картине в прихожей, оттенку кухонного гарнитура, плитке на полу в кухне, паркету в кабинете. Все детали интерьера объединяют каждое помещение в единую концепцию.
Этот проект заслуживает внимания за выверенную игру деталей, максимальное заполнение пространства, индивидуальный подход к каждому элементу интерьера. Для дизайнера нет незначительных мелочей. Все должно быть согласовано, играть единую мелодию.
Не откладывайте свою мечту на завтра!
Получите детальный проект квартиры или дома мечты!
Оставьте свои контактные данные, чтобы мы могли с вами связаться и обсудить ваш проект.
Часто задаваемые вопросы
Конечно! На стадии разработки проекта можно вносить изменения. Если возникло желание внести изменения в готовый проект после согласования и сдачи, тогда составляется доп.соглашение о дополнительной оплате и о характере корректировок.
Дизайн проект включает в себя:
План обмера помещения (существующая планировка помещения с указанием площади).
Утвержденный концепт-план (планировочное решение с разделением на функциональные зоны с расстановкой мебели и сантехнического оборудования).
Подбор материалов (отделочные материалы, мебель, сантехника, светильники, текстиль и многое другое).
Ведомость отделочных материалов (площади материалов, типы материалов).
План демонтажа конструкций.
План монтажа конструкций из ГКЛ (с дополнительными схемами конструкций на новых листах).
План-схема дверных проемов (со спецификацией дверей и витражей).
План отопительных приборов.
План сантехнического оборудования (подбор сантехники и развертка по стенам с привязками).
План покрытий пола с указанием площади.
План уровней потолка.
План освещения (спецификация светильников).
План розеток с привязками.
Узлы сложных и дизайнерских конструктивных решений.
Развертки по стенам. Раскладка плитки.
Подробные чертежи сложных узлов и деталей.
Чертежи по кухне и оборудованию.
Чертежи индивидуальных изделий под заказ.
Визуализации интерьера.
Цена на дизайн-проект всегда зависит от его наполнения, т.е. от поставленных задач, их сложности, сроков, этапов реализации и площади помещения.
Работа может включать создание только эскизного проекта, рабочего проекта или полного проекта. Наличие услуги авторского сопровождения дизайнера также влияет на итоговую стоимость проекта.
Чертежи нужны, прежде всего, строителям. Чертежная документация пошагово отражает, как нужно проводить ремонтные работы на конкретном объекте. Чтобы не было дорогостоящих и долгих переделок, исполнителям надо дать четкую «инструкцию ремонта».
Чертежи – это помощники в коммуникации между дизайнером и строительной бригадой. С помощью комплекта чертежей строители и отделочники выполнят все работы именно так, как было спроектировано.
Стоимость дизайн-проект всегда зависит от его наполнения (площади помещения, поставленных задач, их сложности, этапов и сроков реализации).
Дизайн-проект может быть только эскизный или дополнен 3D-моделированием. Комплект чертежей может быть базовым или полным. На итоговую стоимость влияет наличие дополнительных услуг: авторского сопровождения, комплекция, декорирования объектаи др.
Удобство и функционал – одно из основных требований, которое я ставлю перед собой как дизайнером. Поэтому я всегда определяю все действия, которые будут происходить в помещении, не забывая про ежедневные рутины. Это та самая база, без которой дизайн может оказаться неудачным. Только так можно сделать помещение многофункциональным и удобным.
Четкий алгоритм работы всегда позволяет мне найти именно то планировочное решение, которое будет функциональным и эргономичным, удобным и лаконичным.
Да. Если у вас возникло желание внести изменения в готовый проект после его согласования и сдачи, тогда составляется доп.соглашение о дополнительной оплате.
Вы также можете решить расширить пакет чертежной документации, выбрать услугу авторского надзора или заказать разработку ландшафтного оформления. Это также повлияет на итоговую оплату работы дизайнера.
При проведении ремонтных работ нужно заключать договор, чтобы в случае ненадлежащего исполнения и порчи материалов нарушитель нес ответственность, а у пострадавшей стороны была возможность предъявить требования. Я считаю, что строители должны с вами согласовать, как будет возмещен ущерб. Иногда они сами покупают тот материал, который испортили.
Чтобы такого не произошло, выбирайте проверенных строителей или по рекомендации.
Оставьте заявку и наш менеджер ответит вам в ближайшее время